Последние новости рубрики Общество
Общество

Нижегородский минград утвердил строительство высотного дома у Щелоковского хутора

09 декабря 2024 17:27 Общество

Фото: mingrad.nobl.ru

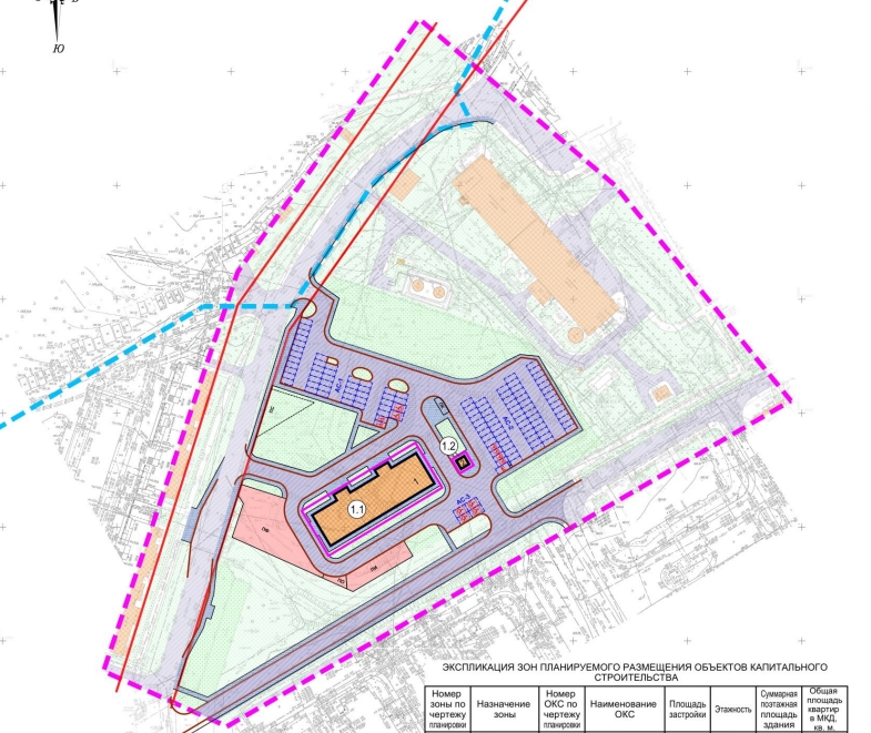
Министерство градостроительной деятельности и развития агломераций региона утвердило изменения в проект планировки и межевания в границах Анкудиновского шоссе, улицы Цветочной, Щелоковского хутора и дублера проспекта Гагарина в Нижнем Новгороде. Об этом сообщается в приказе на сайте минграда.

Документация по планировке территории подготовлена ООО "Хутор" по заказу ООО "Линия".

Проект планировки касается земельного участка площадью 3,8 га, где планируется построить дом высотой в 17 этажей. Общая площадь будущей новостройки составит 16 тысяч кв. метров.

Около дома будут построены три парковки на 46, 68 и 4 машины соответственно. Кроме того, у высотного дома планируется обустроить детскую площадку, а также площадки для занятия физкультурой и выгула собак.

Напомним, крупнейший в Нижегородской области жилой квартал построят у деревни Ольгино за 29 млрд рублей.

У НИА «Нижний Новгород» есть каналы в Telegram и MAX. Подписывайтесь, чтобы быть в курсе главных событий, эксклюзивных материалов и оперативной информации.

Поделиться: