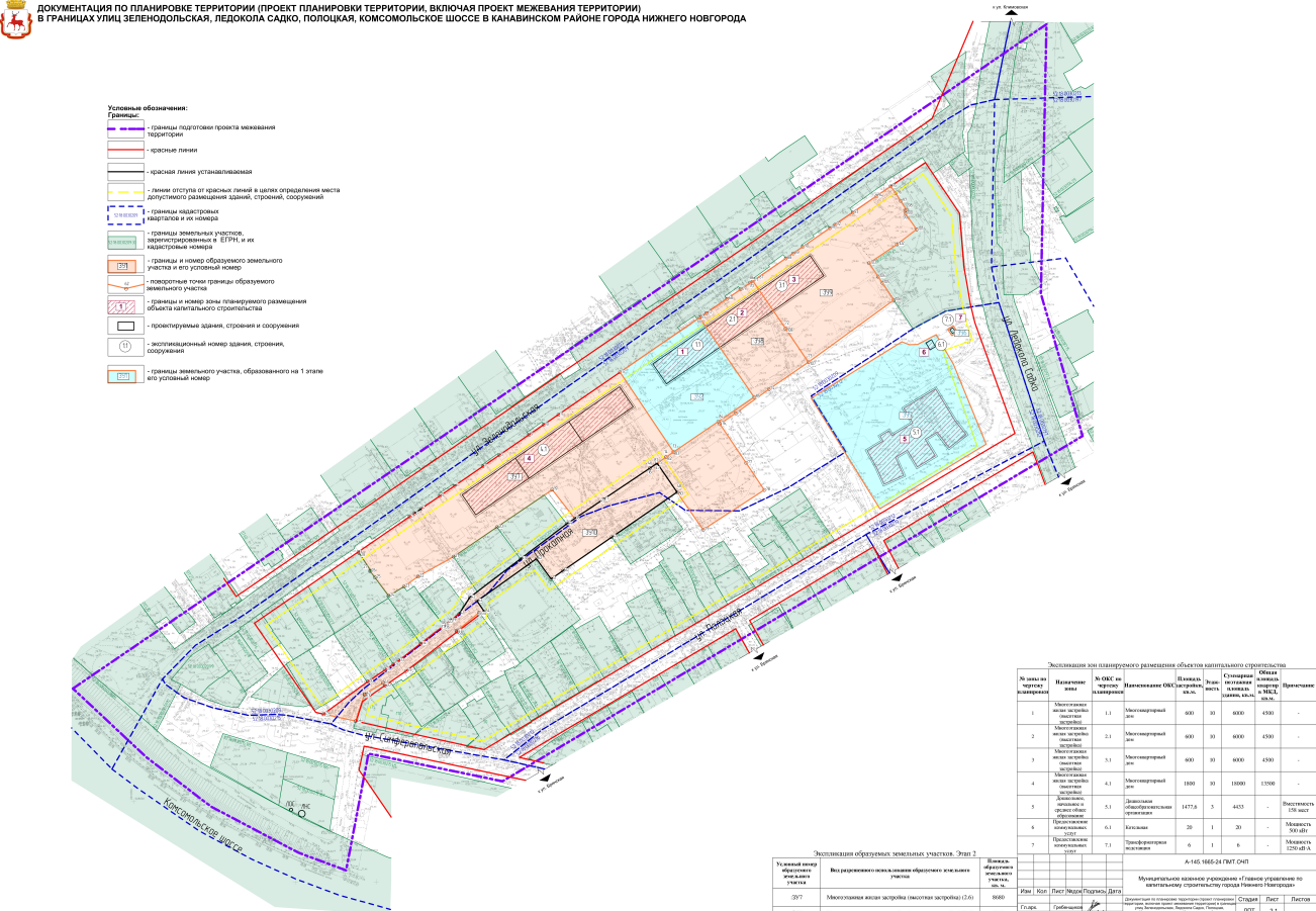
В Канавинском районе Нижнего Новгорода планируется возведение четырех многоквартирных домов для переселения жителей из аварийного фонда. Проект планировки территории опубликован на сайте мэрии и вынесен на общественные обсуждения.
Речь идет об участке площадью 12,61 га в границах улиц Зеленодольской, Ледокола Садко, Полоцкой и Комсомольского шоссе. Документация подготовлена ООО "Архивариус" по заказу городского управления по капитальному строительству.
Согласно проекту, на территории появятся четыре десятиэтажных дома. Три из них будут иметь площадь застройки по 600 кв. метров, еще один — 1800 кв. метров. Жилье предназначено для переселения граждан из домов, признанных аварийными.
Помимо жилой застройки, предусмотрено строительство детского сада на 158 мест, котельной и трансформаторной подстанции. Кроме того, запланировано расширение улицы Зеленодольской до нормативных параметров, установленных для дорог местного значения, а также капитальный ремонт улиц Симферопольской, Полоцкой, Ледокола Садко и Прокатной. В перечень работ входит обустройство тротуаров и велодорожек, а также создание открытых парковочных мест.

Фото: сайт администрации Нижнего Новгорода
Развитие территории разобьют на две очереди. На первом этапе планируется расселение и снос ряда аварийных домов на улицах Зеленодольской и Прокатной, прокладка и переустройство инженерных сетей, а также строительство первого дома и объектов инженерной инфраструктуры. Работы рассчитаны до 2028 года.
К 2030 году предполагается завершить реконструкцию улицы Зеленодольской с расширением проезжей части, обустройством тротуаров и велодорожки, капитальный ремонт улиц Ледокола Садко и Полоцкой, создание парковочного кармана и строительство детского сада.
В последующие этапы предусмотрены дальнейшее расселение ветхих домов, капремонт улицы Прокатной, строительство еще двух многоэтажек и организация парковочных мест. В рамках второй очереди появится четвертый дом и дополнительные парковки, а также будет выполнен капитальный ремонт улиц Симферопольской и Полоцкой.
Полностью завершить реализацию проекта планируется к 2034 году.
Ранее сообщалось, что на улице Краснодольской мэрия изымает аварийный дом №112 на Зеленодольской улице для сноса.
Добавим, что в 2025 году в Нижнем Новгороде снесли 34 многоквартирных аварийных дома. Всего до 2030 года планируется расселение более 6 тысяч нижегородцев из 250 аварийных МКД.
У НИА "Нижний Новгород" есть Telegram-канал. Подписывайтесь, чтобы быть в курсе главных событий, эксклюзивных материалов и оперативной информации.
Copyright © 1999—2025 НИА "Нижний Новгород".
При перепечатке гиперссылка на НИА "Нижний Новгород" обязательна.
Настоящий ресурс может содержать материалы 18+